Do we need them?

Of course, we do.  But where?

Of course, we do. But where?

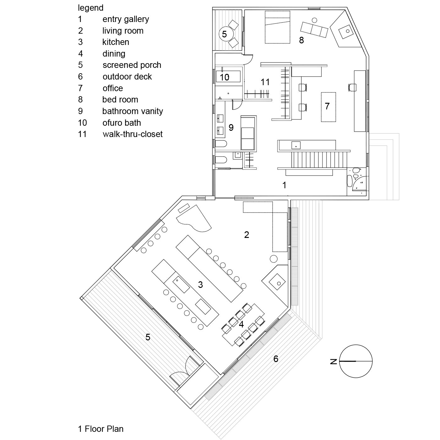
Doors are tricky. They provide necessary privacy but also compartmentalize spaces. Merri experiments with minimum door plan. We used pocket doors where possible. As a result, spaces flow into each other. Perhaps my Japanese DNA is playing a dominant role in making this decision. In a house I grew up, “fusuma screens” slide back and forth to divide and connect rooms. Two bed rooms become a large dining room in a second! Brilliant!

 
Previous
Previous

Architectural Order

Next
Next

b e a u t i f u l